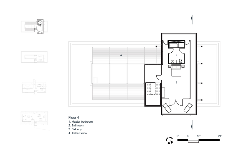
canvas floor 4
Projects